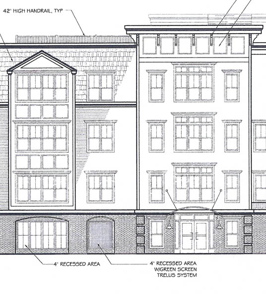
Viewing Overview Events Map Contact News Project Stats Address:360 West Second Street Neighborhood:South Boston Land Sq. Feet:9,460 sq ft Building Size:24,020 sq ft Uses:Ownership / Residential Residential Units:19
Project Description: Proposal calls for the construction of a 4-story structure for the provision of 19 condo units and 25 parking spaces. Project Documents All Project Documents »
Project Description: Proposal calls for the construction of a 4-story structure for the provision of 19 condo units and 25 parking spaces. Project Documents All Project Documents »