CityOfBoston Official An official website of the City of Boston

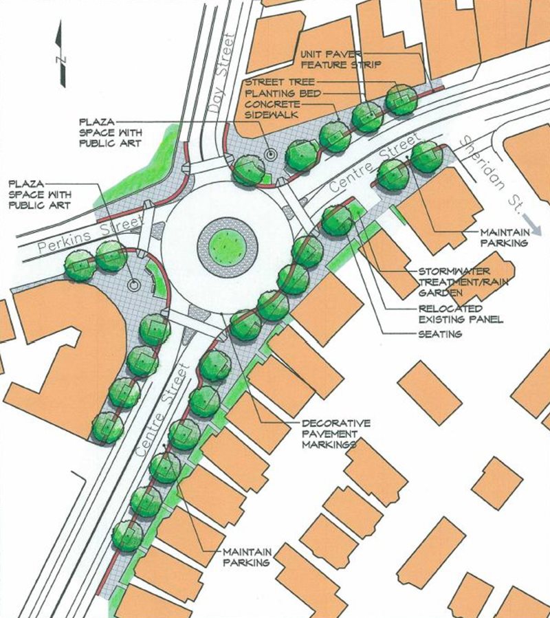
The Centre and South Transportation and Streetscape Action Plan, led by the Boston Transportation Department, Boston Redevelopment Authority, and the Mayor’s Office of Neighborhood Services, was dedicated to the overall improvement of the Centre and South Street Corridor in Jamaica Plain, Boston. It addressed two miles from Centre Street (Jackson Square T Station) to South Street (Forest Hills T Station) - focusing on issues regarding transportation, neighborhood businesses, and streetscape improvements. A Community Advisory Group was appointed by Mayor Thomas M .Menino to work with the project consultants McMahon and Associates to develop the Centre and South Street Action Plan. The Advisory group met monthly to ensure the community's voice is driving the action plan. They represented residents, business owners, neighborhood organizations, and youth.

Documents All Documents »